Alerte mail  
  |  
Paris 10 - Quartier Gare du Nord
760 000 €
Un appartement de 3 pièces de 66 m²
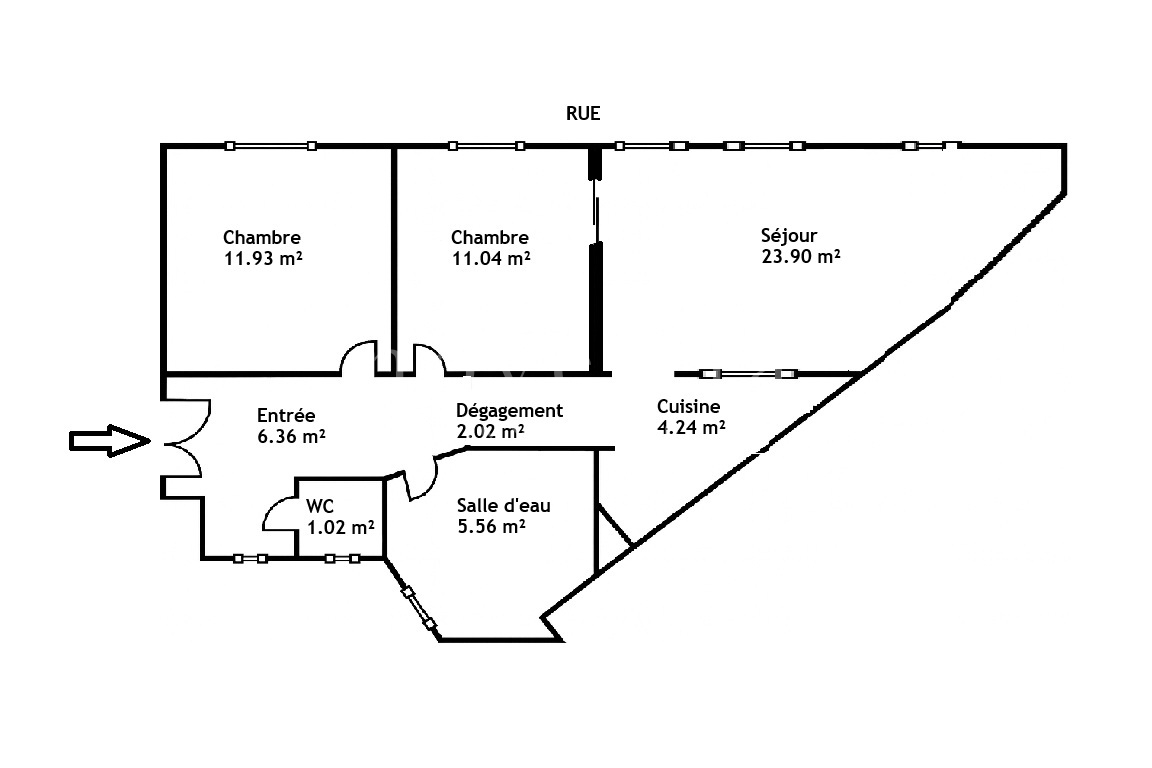
EXCLUSIVITÉ - PARIS X - À QUELQUES PAS DE L'AVENUE DE TRUDAINE - Rue de Dunkerque, au 2ème étage d'un immeuble en pierre de taille équipé d'un ascenseur, nous vous vous proposons un très bel appartement refait à neuf de 66 m². Cet appartement, comprend une entrée, un grand séjour, une cuisine équipée, deux chambres, une grande salle de douche et un WC séparé. Grande cave au sous-sol. À proximité immédiate de la Gare du Nord et de ses nombreux commerces.
CARACTERISTIQUES
Refait à neuf
Surface au sol : 66 m2
Surface carrez : 66 m2
2 chambres
1 salle d'eau
1 WC
WC séparé : Oui
Nature de l'eau : Gaz
Nature du chauffage : Individuel gaz
Cuisine : Équipée
Vue : Sur rue
Orientation : Nord
Nombre d'exposition : Simple
Cheminée
Parquet
Parties communes / immeuble
Année de construction : 1880
Façade : Pierre de Taille
Cave
Interphone
Ascenceur
Charges et taxes
Charges / mois : 165 €
Taxe foncière : 1 225 €
Localisation
Quartier : Gare du Nord
Métro : Gare du Nord
Lignes :   
Performance énergétique
Performance énergétiques
PARIS 10 - Quartier Gare du Nord
PRIX : 760 000 €
Honoraires d'agence à la charge de l'acquereur
 
66 m2
 
2
 
2
Votre contact:
Florian Héral
0664531465
florian@novestia.fr
  être rappelé(e).
PARIS 10 - Quartier Gare du Nord
PRIX : 760 000 €
Honoraires d'agence à la charge de l'acquereur
 
66 m2
 
2
 
2
Votre contact:
Florian Héral
0664531465
florian@novestia.fr
  être rappelé(e).