Alerte mail  
  |  
Paris 11 - Quartier Sainte-Ambroise
479 000 €
Appartement 2 pièces de 44.41m² avec balcon
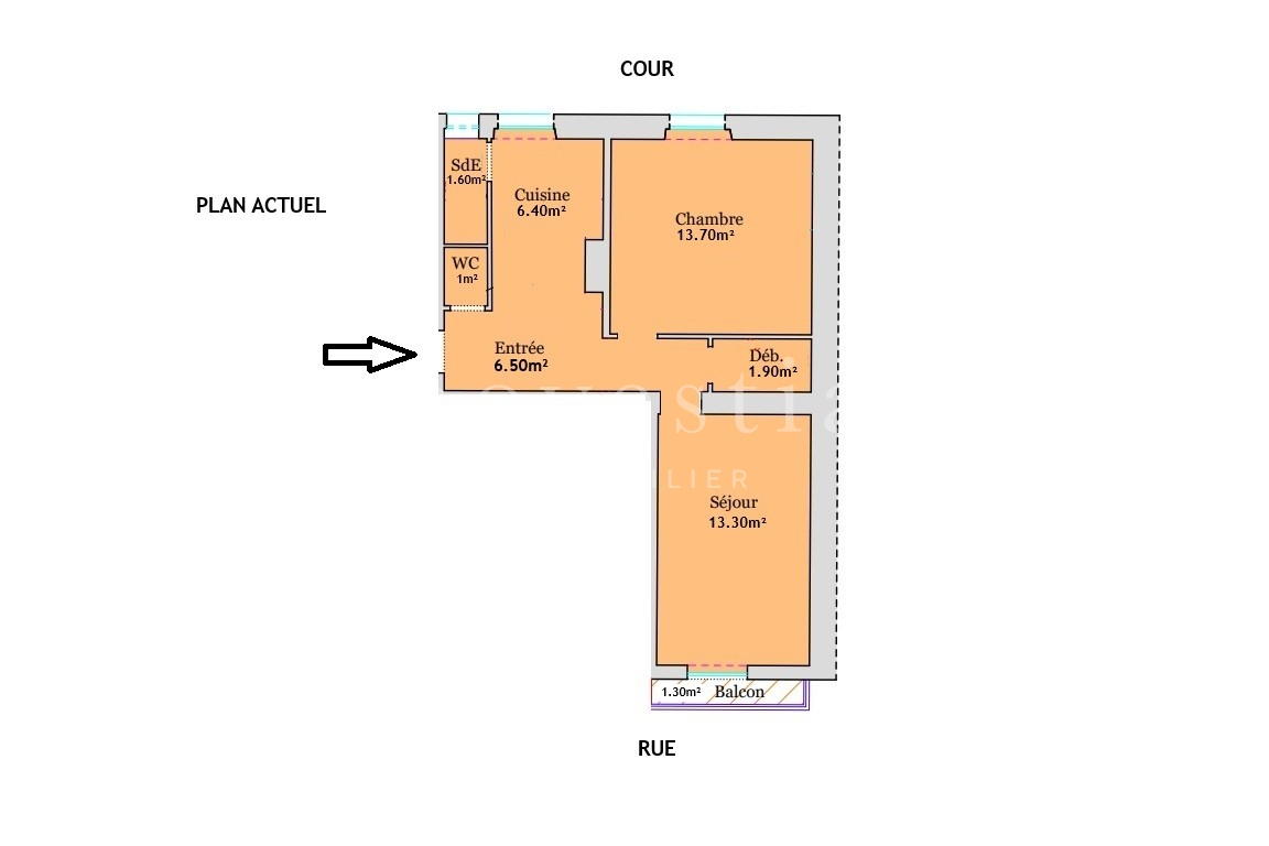
QUARTIER SAINT AMBROISE - RUE GUILLAUME BERTRAND - À PROXIMITÉ DU SQUARE GARDETTE ET DE LA RUE SAINT-MAUR - Au 4e étage d'un immeuble en pierre de taille sans ascenseur, NOVESTIA IMMOBILIER vous propose un appartement lumineux de 44.41 m² Loi Carrez avec un balcon. Ce bien comprend une entrée, un séjour donnant sur le balcon, une cuisine, une chambre, une penderie, une salle d'eau ainsi que des wc séparés. Appartement avec du parquet, une cheminée et du double vitrage. Cave au sous-sol. Parties communes entièrement rénovées fin 2024. Commerces et transports à proximité immédiate.
CARACTERISTIQUES
Surface au sol : 45.09 m2
Surface carrez : 44.41 m2
1 balcon : 1.3 m²
1 chambre
1 salle d'eau
1 WC
WC séparé : Oui
Nature de l'eau : Gaz
Nature du chauffage : Gaz
Cuisine : Indépendante
Vue : Sur rue et cour
Orientation : Sud-Est
Nombre d'exposition : Double
Diagnostic Energétique : E
Emission de CO2 : E
Nuisance sonore : Calme
Cheminée
Parquet
Double vitrage
Dressing
Entrée
Placard
Parties communes / immeuble
Année de construction : 1890
Façade : Pierre de Paris
Surface cave : 3 m²
Digicode
Charges et taxes
Charges / mois : 94 €
Taxe foncière : 715 €
Localisation
Quartier : Sainte-Ambroise
Métro : Rue Saint-Maur
Lignes :   
Performance énergétique

Consommation énergetique primaire
307 kWhEP/m²/an

Performance énergétiques

Emission
67 kg éqCO2/m²/an

PARIS 11 - Quartier Sainte-Ambroise
PRIX : 479 000 €
Honoraires d'agence à la charge de l'acquereur
 
44.41 m2
 
1
 
4
Votre contact:
Florian Héral
0664531465
florian@novestia.fr
  être rappelé(e).
PARIS 11 - Quartier Sainte-Ambroise
PRIX : 479 000 €
Honoraires d'agence à la charge de l'acquereur
 
44.41 m2
 
1
 
4
Votre contact:
Florian Héral
0664531465
florian@novestia.fr
  être rappelé(e).