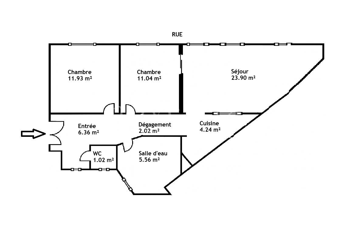
EXCLUSIVITÉ - PARIS X - À QUELQUES PAS DE L'AVENUE DE TRUDAINE - Rue de Dunkerque, au 2ème étage d'un immeuble en pierre de taille équipé d'un ascenseur, nous vous vous proposons un très bel appartement refait à neuf de 67.03 m² Loi Carrez. Cet appartement, comprend une entrée, un grand séjour, une cuisine équipée, deux chambres, une grande salle de douche et un WC séparé. Une hauteur sous plafond de 2.95 m. Grande cave au sous-sol. À proximité immédiate de la Gare du Nord et de ses nombreux commerces.
CARACTERISTIQUES
Refait à neuf
Surface au sol : 68.56 m2
Surface carrez : 67.03 m2
Hauteur sous plafond : 2.95 m
2 chambres
1 salle d'eau
1 WC
WC séparé : Oui
Nature de l'eau : Gaz
Nature du chauffage : Individuel gaz
Cuisine : Équipée
Vue : Sur rue
Nombre d'exposition : SimpleDiagnostic Energétique : E
Emission de CO2 : E
Cheminée
Parquet
Double vitrage
Parties communes / immeuble
Année de construction : 1880
Façade : Pierre de Taille
Surface cave : 4 m²
Interphone
Ascenceur