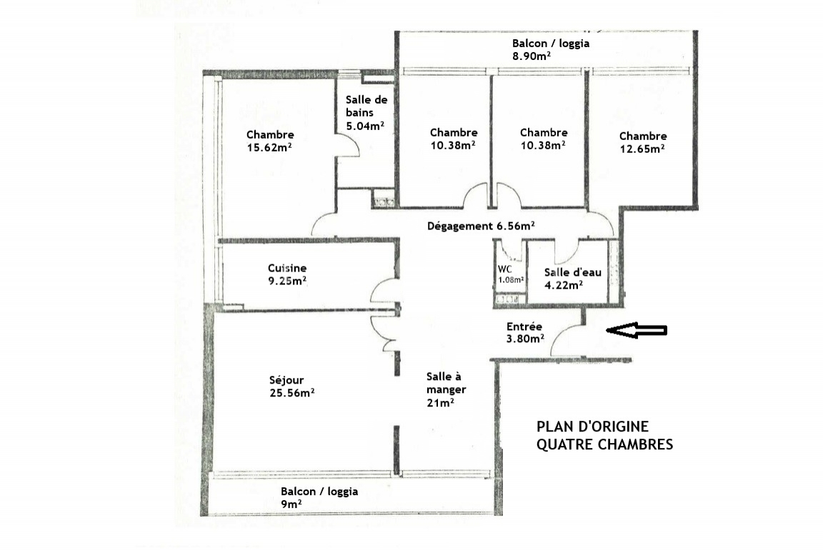
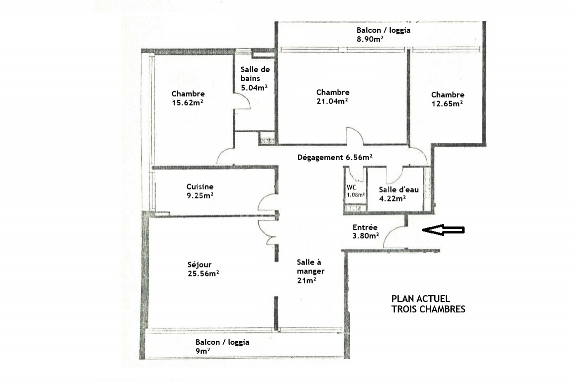
EXCLUSIVITÉ - RUE DAREAU - À PROXIMITÉ DU PARC MONTSOURIS - Au troisième étage d'un immeuble des années 70 équipé d'ascenseurs et bénéficiant d'une gardienne, nous vous proposons un appartement de 125,82 m² Loi Carrez muni de deux balcons pour une surface totale de 17,90 m². Ce bien comprend une entrée, un double séjour avec une partie salle à manger donnant sur un balcon exposé sud-est, une cuisine indépendante, une chambre principale avec sa salle de bains et ses WC, une grande chambre donnant sur un balcon (possibilité de créer une quatrième chambre comme dans le plan d'origine), une troisième chambre sur un balcon, une salle d'eau ainsi que des WC indépendants. Appartement à rénover entièrement (hors les baies vitrées qui sont récentes). Appartement lumineux, avec des extérieurs et de nombreux rangements. Une grande cave saine complète ce bien ainsi que la possibilité d'acquérir un double emplacement de parking dans l'immeuble.
CARACTERISTIQUES
A rénover entièrement
Surface au sol : 125.82 m2
Surface carrez : 125.82 m2
Surface séjour : 46.56 m2
2 balcons : 17.9 m²
4 chambres
1 salle de bain
1 salle d'eau
2 WC
WC séparé : Oui
Nature de l'eau : CPCU
Nature du chauffage : CPCU
Cuisine : Indépendante
Vue : Sur jardin
Orientation : Sud-Est
Nombre d'exposition : DoubleDiagnostic Energétique : D
Emission de CO2 : D
Nuisance sonore : Calme absolu
Adapté/fauteuil roulant
Double vitrage
Placard
Sans vis-à-vis
Parties communes / immeuble
Année de construction : 1970
Façade : 1970
2 Parkings
Prix parking inclus : Non
Surface cave : 6 m²
Gardien
Digicode
Interphone
Ascenceur